ap. geminados
reforma de apartamentos, 2017
copacabana, rio de janeiro
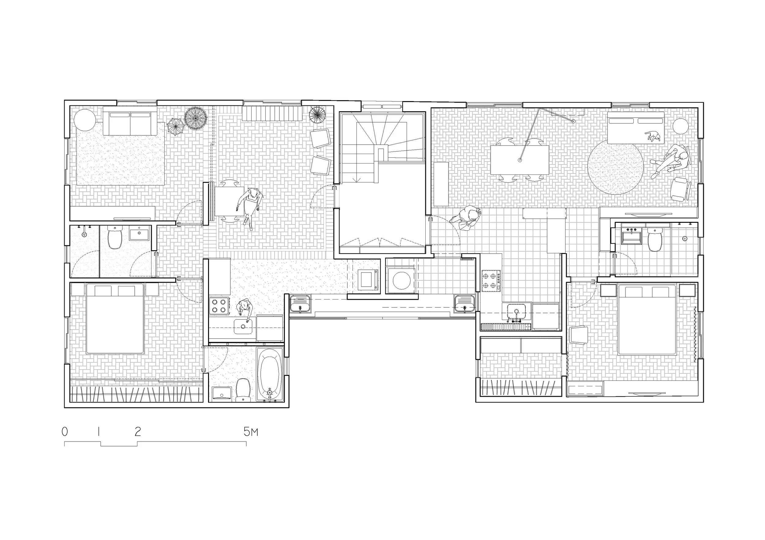
O projeto consiste na reforma dos dois apartamentos do terceiro pavimento do edifício Dois Irmãos que apresenta a pecualiaridade de ter duas fachadas para a rua e uma planta simétrica. Os apartamentos eram idênticos e espelhados. Cada um deles é requalificado para seus novos moradores.
The project consists of the renovation of the two apartments on the third floor of the Dois Irmãos building, which has the peculiarity of having two facades facing the street and a symmetrical floor plan. The apartments were identical and mirrored. Each of them is requalified for its new residents.


projeto em parceria com Vitor Garcez







Um deles elimina o segundo quarto, mantem um unico banheiro e acrescenta um closet. O segundo prefere um quarto reversível e uma suíte. Ambos integram as cozinhas à sala e preservam o piso de taco existente. Cada unidade adquire aspectos materiais distintos com novos elemento de revestimento, esquadrias e mobiliário fixo.
One of them eliminates the second bedroom, keeps a single bathroom and adds a closet. The second prefers a reversible bedroom and a suite. Both integrate the kitchens into the living room and preserve the existing hardwood floor. Each unit acquires distinct material aspects with new cladding elements, frames and fixed furniture.








fotos: Renato Mangolin